Описание
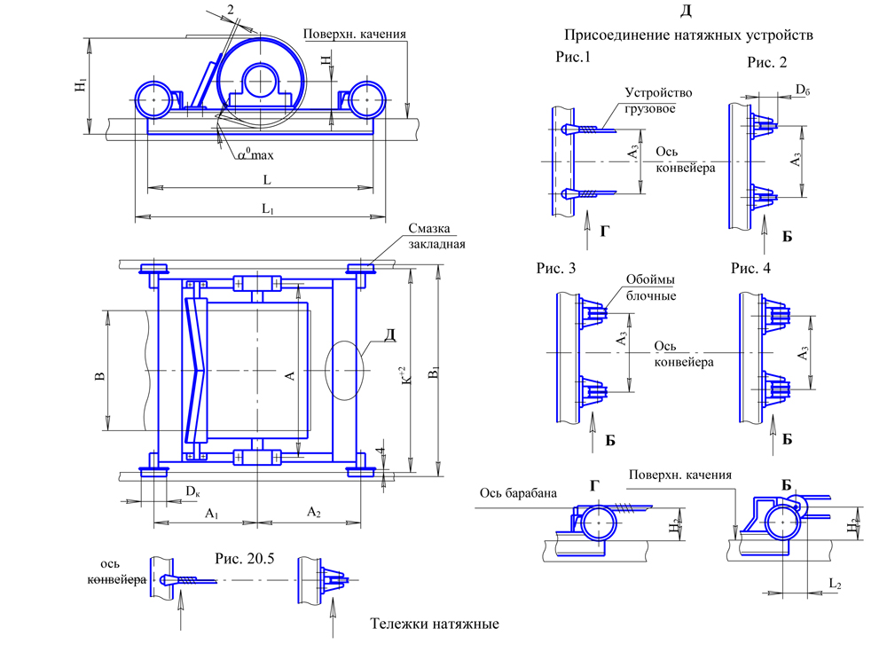
Натяжные устройства рассматриваемых конвейеров делятся на два типа: винтовые и грузовые.
Грузовые натяжные устройства делятся на грузовые тележечные и грузовые вертикальные (рамные). Каждое из названных натяжных устройств состоит из натяжной тележки (или натяжной рамы) и грузового устройства.
Грузовые устройства могут быть без полиспаста, с полиспастом или грузолебедочные. Выбор типа натяжного устройства зависит от длины конвейера, схемы его трассы, условий размещения устройства и других условий. Длина хода барабана натяжного устройства должна быть не менее 2% от длины конвейера. Устройства натяжные винтовые Винтовые натяжные устройства следует применять при длине конвейера не более 30-50 м, причем меньшие значения для конвейеров имеющих тяжелые условия работы (повышенная влажность и загрязненность) и ширину ленты В=1200-2000 мм. Длина хода натяжного барабана винтового устройства должна быть 320 мм (для конвейеров длиной до 15 м); 500 мм (для конвейеров до 25 м) и 800 мм (для конвейеров длиной 25-50 м). Типоразмер винтового натяжного устройства в приближенном методе расчета следует принимать в зависимости от типоразмера приводного барабана. Обычно, этот типоразмер на порядок меньше типоразмера приводного барабана. Устройства натяжные грузовые Выбор типоразмера натяжной тележки и натяжной рамы следует определять по необходимому расчетному усилию грузового устройства.
Технические характеристики
Характеристика винтовых нятяжных устройств

|
Ширина ленты В, мм |
Типоразмер устройства |
Допуст. усилие Sб.доп,даН |
D, мм |
Подшипник |
Размеры, мм |
Масса, кг |
|
Условн. обознач. |
dп,мм |
А |
А1 |
А2 |
В1 |
В2 |
В3 |
H |
H1 |
H2 |
h |
L |
L1 |
|
400 |
4025-40-32 |
800 |
250 |
3608 |
40 |
320 |
770 |
730 |
500 |
830 |
94 |
267 |
130 |
80 |
46 |
840 |
225 |
120 |
|
4031,5-50-32 |
1250 |
315 |
3610 |
50 |
320 |
770 |
840 |
94 |
267 |
130 |
80 |
46 |
1020 |
225 |
138 |
|
4031,5-50-50 |
1250 |
315 |
3610 |
50 |
500 |
950 |
840 |
94 |
267 |
130 |
80 |
46 |
1020 |
225 |
148 |
|
|
|
|
|
|
|
|
|
|
|
|
|
|
|
|
|
|
|
|
500 |
5025-40-32 |
800 |
250 |
3608 |
40 |
320 |
770 |
850 |
600 |
950 |
94 |
267 |
130 |
80 |
46 |
840 |
225 |
125 |
|
5031,5-50-32 |
1250 |
315 |
3610 |
50 |
320 |
770 |
960 |
94 |
267 |
130 |
80 |
46 |
840 |
225 |
145 |
|
5031,5-50-50 |
1250 |
315 |
3610 |
50 |
500 |
950 |
960 |
94 |
267 |
130 |
80 |
46 |
1020 |
225 |
155 |
|
5040-60-50 |
1600 |
400 |
3612 |
60 |
500 |
1070 |
1120 |
116 |
312 |
150 |
90 |
52 |
1150 |
285 |
205 |
|
5040-60-80 |
1600 |
400 |
3612 |
60 |
800 |
1370 |
1120 |
116 |
312 |
150 |
90 |
52 |
1450 |
285 |
215 |
|
|
|
|
|
|
|
|
|
|
|
|
|
|
|
|
|
|
650 |
6525-40-32 |
800 |
250 |
3608 |
40 |
320 |
770 |
1000 |
750 |
1100 |
94 |
267 |
130 |
80 |
46 |
840 |
225 |
130 |
|
6531,5-50-32 |
1600 |
315 |
3610 |
50 |
320 |
770 |
1110 |
94 |
267 |
130 |
80 |
46 |
840 |
225 |
150 |
|
6531,5-50-50 |
500 |
950 |
1020 |
160 |
|
6540-60-50 |
2000 |
400 |
3612 |
60 |
500 |
1070 |
1120 |
116 |
312 |
150 |
90 |
52 |
1150 |
285 |
215 |
|
6540-60-80 |
800 |
1370 |
1450 |
225 |
|
6550-80-50 |
2500 |
500 |
3616 |
80 |
500 |
1200 |
1140 |
180 |
433 |
210 |
120 |
74 |
1300 |
350 |
370 |
|
6550-80-80 |
800 |
1500 |
1600 |
390 |
|
|
|
|
|
|
|
|
|
|
|
|
|
|
|
|
|
|
800 |
8031,5-50-50 |
1000 |
315 |
3610 |
50 |
500 |
950 |
1350 |
950 |
1455 |
94 |
267 |
130 |
80 |
46 |
1020 |
225 |
175 |
|
8040-60-50 |
1500 |
400 |
3612 |
60 |
500 |
1070 |
1470 |
116 |
312 |
150 |
90 |
52 |
1150 |
285 |
270 |
|
8040-60-80 |
800 |
1370 |
1450 |
290 |
|
8050-80-50 |
3000 |
500 |
3616 |
80 |
500 |
1200 |
1490 |
180 |
433 |
210 |
120 |
74 |
1300 |
350 |
380 |
|
8050-80-80 |
800 |
1500 |
1600 |
390 |
|
8063-100-50 |
5000 |
630 |
3620 |
100 |
500 |
1200 |
1520 |
180 |
483 |
235 |
145 |
74 |
1300 |
350 |
570 |
|
8063-100-80 |
800 |
1500 |
1600 |
590 |
|
Ширина ленты В, мм |
Типоразмер устройства |
Допуст. усилие Sб.доп,даН |
D, мм |
Подшипник |
Размеры, мм |
Масса, кг |
|
Условн. обознач. |
dп,мм |
А |
А1 |
А2 |
В1 |
В2 |
В3 |
H |
H1 |
H2 |
h |
L |
L1 |
|
1600 |
16031,5-50-50 |
|
315 |
3610 |
50 |
500 |
950 |
2200 |
1800 |
2305 |
46 |
267 |
130 |
80 |
46 |
1020 |
225 |
|
|
16040-80-50 |
|
400 |
3616 |
80 |
500 |
1200 |
2340 |
74 |
433 |
210 |
120 |
74 |
1300 |
350 |
|
|
16040-80-80 |
800 |
1500 |
1600 |
|
|
16050-100-50 |
|
500 |
3620 |
100 |
500 |
1200 |
2370 |
74 |
483 |
235 |
145 |
74 |
1300 |
350 |
|
|
16050-100-80 |
800 |
1500 |
1600 |
|
|
16063-100-50 |
|
630 |
3620 |
100 |
500 |
1200 |
2370 |
74 |
483 |
235 |
145 |
74 |
1300 |
350 |
|
|
16063-100-80 |
800 |
1500 |
1600 |
|
|
|
|
|
|
|
|
|
|
|
|
|
|
|
|
|
|
|
2000 |
20040-100-80 |
8000 |
400 |
3620 |
100 |
800 |
1500 |
2800 |
2200 |
2970 |
180 |
480 |
235 |
145 |
74 |
1600 |
350 |
740 |
|
20040-100-120 |
8000 |
400 |
3620 |
100 |
1200 |
1900 |
2970 |
180 |
480 |
235 |
145 |
74 |
2000 |
350 |
780 |
|
20050-120-80 |
12500 |
500 |
3624 |
120 |
800 |
1650 |
3020 |
220 |
500 |
280 |
165 |
88 |
1750 |
420 |
1190 |
|
20050-120-120 |
12500 |
500 |
3624 |
120 |
1200 |
2050 |
3020 |
220 |
500 |
280 |
165 |
88 |
2150 |
420 |
1230 |
|
20063-120-80 |
12500 |
630 |
3624 |
120 |
800 |
1650 |
3020 |
220 |
500 |
280 |
165 |
88 |
1750 |
420 |
1270 |
|
20063-120-120 |
12500 |
630 |
3624 |
120 |
1200 |
2050 |
3020 |
220 |
500 |
280 |
165 |
88 |
2150 |
420 |
1310 |
Характеристика винтовых тележек

|
Ширина ленты В, мм |
Типоразмер |
Допуст. усилие Sб.доп.,даН |
Рис. |
Размеры, мм |
a° |
Масса qт, кг |
|
А |
А1 |
А2 |
А3 |
В1 |
Н |
Н1 |
Н2 |
L |
L1 |
L2 |
K |
Dк |
Dб |
|
500 |
5031,5ТО-50 |
1900 |
5 |
850 |
500 |
500 |
- |
1105 |
100 |
380 |
175 |
1070 |
1240 |
- |
1000 |
200 |
- |
6 |
200 |
|
5040ТО-60 |
3750 |
5 |
575 |
495 |
- |
1105 |
115 |
435 |
190 |
1140 |
1310 |
- |
1000 |
200 |
- |
240 |
|
5050ТО-80 |
5200 |
5 |
675 |
585 |
- |
1105 |
145 |
555 |
220 |
1330 |
1500 |
- |
1000 |
200 |
- |
360 |
|
5050ТПО-80 |
5200 |
6 |
675 |
585 |
- |
1105 |
145 |
555 |
220 |
1330 |
1500 |
305 |
1000 |
200 |
250 |
400 |
|
650 |
6531,5ТО-50 |
1900 |
5 |
1000 |
500 |
500 |
- |
1255 |
100 |
380 |
175 |
1120 |
1240 |
- |
1150 |
200 |
- |
6 |
215 |
|
6540ТО-60 |
3750 |
5 |
535 |
535 |
- |
1255 |
115 |
435 |
190 |
1190 |
1310 |
- |
1150 |
200 |
- |
255 |
|
6550ТО-80 |
5200 |
5 |
630 |
630 |
- |
1255 |
145 |
555 |
220 |
1380 |
1500 |
- |
1150 |
200 |
- |
370 |
|
6550ТПО-80 |
5200 |
6 |
630 |
630 |
- |
1255 |
145 |
555 |
220 |
1380 |
1500 |
305 |
1150 |
200 |
250 |
410 |
|
800 |
8040ТО-60 |
3750 |
1 |
1350 |
655 |
575 |
850 |
1605 |
115 |
475 |
190 |
1320 |
1470 |
- |
1500 |
200 |
- |
5 |
340 |
|
8050ТО-80 |
5200 |
1 |
760 |
600 |
850 |
1615 |
145 |
595 |
220 |
1460 |
1600 |
- |
1510 |
200 |
- |
470 |
|
8063ТО-100 |
8000 |
1 |
900 |
700 |
850 |
1640 |
170 |
725 |
265 |
1710 |
1890 |
- |
1530 |
250 |
- |
730 |
|
8080ТО-120 |
12500 |
1 |
1090 |
900 |
850 |
1660 |
205 |
875 |
300 |
2100 |
2280 |
- |
1550 |
250 |
- |
1040 |
|
8080ТПО-120 |
12500 |
2 |
1090 |
900 |
850 |
1660 |
205 |
875 |
300 |
2100 |
2280 |
305 |
1550 |
250 |
250 |
1140 |
|
8080ТПЛО-120 |
12500 |
3 |
1090 |
900 |
750 |
1660 |
205 |
875 |
300 |
2100 |
2280 |
305 |
1550 |
250 |
250 |
1160 |
|
8080ТПО-160 |
19000 |
2 |
1185 |
935 |
850 |
1820 |
255 |
970 |
430 |
2230 |
2715 |
385 |
1670 |
400 |
315 |
2110 |
|
8080ТПЛО-160 |
19000 |
3 |
1185 |
935 |
750 |
1820 |
255 |
970 |
430 |
2230 |
2715 |
305 |
1670 |
400 |
250 |
2130 |
|
1000 |
10050ТО-80 |
5200 |
1 |
1580 |
760 |
600 |
850 |
1845 |
145 |
595 |
200 |
1460 |
1600 |
- |
1740 |
200 |
- |
5 |
510 |
|
10063ТО-100 |
8000 |
1 |
900 |
700 |
850 |
1870 |
170 |
725 |
265 |
1710 |
1890 |
- |
1760 |
250 |
- |
790 |
|
10080ТО-120 |
12500 |
1 |
1090 |
900 |
850 |
1890 |
205 |
875 |
300 |
2100 |
2280 |
- |
1780 |
250 |
- |
1130 |
|
10080ТПО-120 |
12500 |
2 |
1090 |
900 |
850 |
1890 |
205 |
875 |
300 |
2100 |
2280 |
305 |
1780 |
250 |
250 |
1240 |
|
10080ТПЛО-120 |
12500 |
3 |
1090 |
900 |
750 |
1890 |
205 |
875 |
300 |
2100 |
2280 |
305 |
1780 |
250 |
250 |
1260 |
|
10080ТПО-160 |
19000 |
2 |
1185 |
935 |
850 |
2045 |
255 |
970 |
430 |
2230 |
2715 |
385 |
1900 |
400 |
315 |
2240 |
|
10080ТПЛО-160 |
19000 |
3 |
1185 |
935 |
750 |
2045 |
255 |
970 |
430 |
2230 |
2715 |
305 |
1900 |
400 |
250 |
2260 |
|
100100ТПО-180 |