Оставьте свой номер телефона и мы перезвоним вам |
|
|
|
Трансинжиниринг / Продукция / Ленточные конвейеры / Комплектующие для ленточного конвейера / Плужковые сбрасыватели для ленточного конвейера


Применение:
Подробную информацию о товаре и условиях сотрудничества узнавайте у наших специалистов по телефону: 8 800 551-77-47.
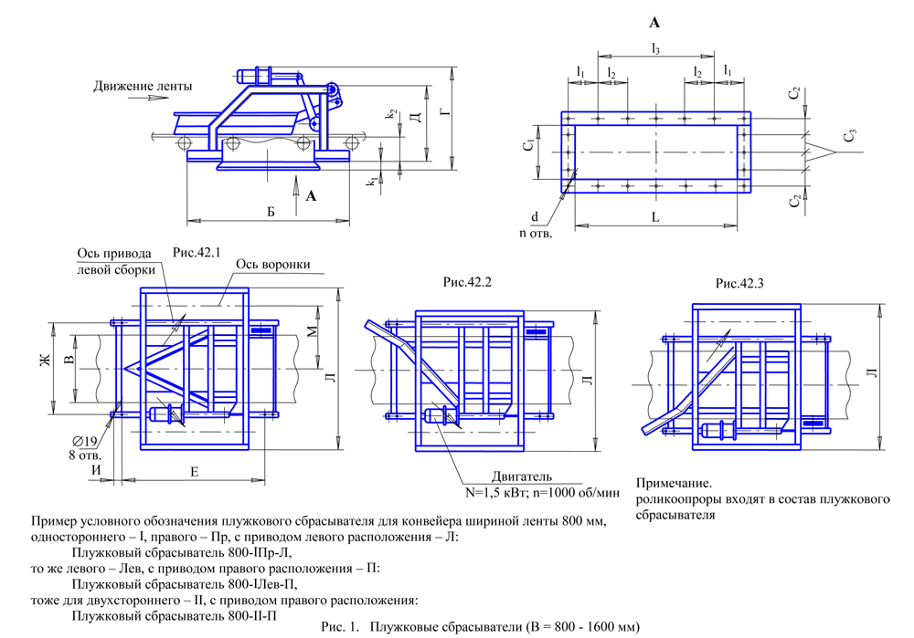
Описание
Плужковые сбрасыватели позволяют разгрузить ленту в средней части конвейера. Эти устройства стационарные, устанавливаемые на секции средней части конвейера.
Данные устройства в зависимости от направления разгрузки с ленты конвейера могут быть односторонними (правые, левые) или двусторонними.
Электрический привод может иметь правое или левое расположение.

Стоимость типовых конструкций можно узнать у наших менеджеров; цена на плужковые сбрасыватели, изготавливаемые по техническому заданию заказчика, рассчитывается индивидуально.
Остались вопросы?
Оставьте заявку и наш менеджер свяжется с вами
Продукция
О компании
Контакты